VI - Saint Sulpice - Duplex exceptionnel en dernier étage
5 460 000€
ROSSI PROPERTIES vous propose en exclusivité, à quelques pas de la célèbre Place Saint-Sulpice, au cœur du très prisé 6ème arrondissement de Paris, un bien d'exception niché au dernier étage d'un immeuble ancien de charme.
Un appartement rare, baigné de lumière et ouvert sur l'horizon parisien.
D'une superficie totale de 170 m² (122 m² + 48 m² carrez), ce bien se compose d'un appartement principal en duplex, entièrement climatisé, bénéficiant d'un balcon filant offrant une vue imprenable sur les tours majestueuses de l'église Saint-Sulpice, ainsi que d'un deux-pièces indépendant attenant.
L'appartement principal (122 m² carrez)
Situé aux 5ème et 6ème étages avec ascenseur, il a fait l'objet d'une rénovation de grande qualité, mêlant harmonieusement éléments anciens (poutres apparentes, volumes élégants) et confort contemporain.
Il se compose comme suit :
Une entrée avec toilettes invités.
Une vaste pièce de vie lumineuse avec une cuisine ouverte discrètement intégrée.
Accès direct au balcon filant, exposé plein ciel, avec vue sur Saint-Sulpice.
Une première chambre avec salle d'eau et rangements.
Une deuxième chambre côté cour arborée, avec salle de bains et grand dressing mural.
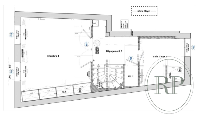
À l'étage supérieur, un escalier élégant mène à la suite parentale, pleine de charme avec sa charpente apparente, ses nombreux rangements, ses toilettes séparées, et sa salle d'eau. Vue dégagée sur la cour arborée et, en point de mire, le sommet de la Tour Eiffel.
Le deux-pièces indépendant (48 m² carrez)
Accessible par l'escalier des parties communes ou facilement rattachable à l'appartement principal via une simple ouverture,
ce deux-pièces se compose :
D'un salon confortable
D'une grande chambre
D'une salle d'eau
D'une cuisine
Ce logement est idéal pour un adolescent, un bureau indépendant, ou pour accueillir amis et famille en toute intimité.
Possibilité d'aménager 1 ou 2 chambres supplémentaires en réunissant les deux espaces.
Tous ces atouts majeurs, font de ce lieu, un bien familial rare et d'exception qui sera combler vos attentes.
Un appartement rare, baigné de lumière et ouvert sur l'horizon parisien.
D'une superficie totale de 170 m² (122 m² + 48 m² carrez), ce bien se compose d'un appartement principal en duplex, entièrement climatisé, bénéficiant d'un balcon filant offrant une vue imprenable sur les tours majestueuses de l'église Saint-Sulpice, ainsi que d'un deux-pièces indépendant attenant.
L'appartement principal (122 m² carrez)
Situé aux 5ème et 6ème étages avec ascenseur, il a fait l'objet d'une rénovation de grande qualité, mêlant harmonieusement éléments anciens (poutres apparentes, volumes élégants) et confort contemporain.
Il se compose comme suit :
Une entrée avec toilettes invités.
Une vaste pièce de vie lumineuse avec une cuisine ouverte discrètement intégrée.
Accès direct au balcon filant, exposé plein ciel, avec vue sur Saint-Sulpice.
Une première chambre avec salle d'eau et rangements.
Une deuxième chambre côté cour arborée, avec salle de bains et grand dressing mural.
À l'étage supérieur, un escalier élégant mène à la suite parentale, pleine de charme avec sa charpente apparente, ses nombreux rangements, ses toilettes séparées, et sa salle d'eau. Vue dégagée sur la cour arborée et, en point de mire, le sommet de la Tour Eiffel.
Le deux-pièces indépendant (48 m² carrez)
Accessible par l'escalier des parties communes ou facilement rattachable à l'appartement principal via une simple ouverture,
ce deux-pièces se compose :
D'un salon confortable
D'une grande chambre
D'une salle d'eau
D'une cuisine
Ce logement est idéal pour un adolescent, un bureau indépendant, ou pour accueillir amis et famille en toute intimité.
Possibilité d'aménager 1 ou 2 chambres supplémentaires en réunissant les deux espaces.
Tous ces atouts majeurs, font de ce lieu, un bien familial rare et d'exception qui sera combler vos attentes.
5 / 6
170 m² Carrez
177 m² Hab
6 pièces
4 chambres
1
3
CHARGES / TAXES / DÉPENSES
- Honoraires à la charge du vendeur
- Copropriété : 20 lots
- Charges courantes provisionnelles annuelles : 6 756,00 €
Aucune procédure en cours menée sur le fondement des articles 29-1A et 29-1de la loi 65-557du 10 juillet 1965 et de l'Article L.615-6 du CCH
- Date du diag : 23/09/2025 - Valeur basse : 2280.00 - Valeur haute : 3150.00 - Année réf : 2025
- Copropriété : 20 lots
- Copropriété : 20 lots
- Charges courantes provisionnelles annuelles : 6 756,00 €
Aucune procédure en cours menée sur le fondement des articles 29-1A et 29-1de la loi 65-557du 10 juillet 1965 et de l'Article L.615-6 du CCH
- Date du diag : 23/09/2025 - Valeur basse : 2280.00 - Valeur haute : 3150.00 - Année réf : 2025
- Copropriété : 20 lots
Contactez
ROSSI Laetitia
+ 33.(0).6.14.27.58.90
ROSSI Laetitia
+ 33.(0).6.14.27.58.90
DIAGNOSTICS
Diagnostic de performance énergétique : 219
Gaz à effet de serre : 28
Gaz à effet de serre : 28

















































